A cikk letöltése jól nyomtatható PDF-ként
PDF-olvasó program




"Ízelítő a múlt század faépítés-tudományából" c. konferencia-cikk,
Al 2-lea simpozion stiintific de Teoria si Practica Reabilitarii Structurilor de Rezistenta
Istorice – Történeti tartószerkezetek felújításának elméleti és gyakorlati kérdései,
2. tudományos ülésszak,
pp. 44-51. Cluj (Kolozsvár), Románia, 1998 nov. 26-29.
 
Azonos címmel, kissé rövidítve is megjelent:   Magyar Építőipar, 1998/11-12. szám, pp. 332-338.


 
 
ÍZELÍTŐ A MÚLT SZÁZAD FAÉPÍTÉS-TUDOMÁNYÁBÓL
 

Somfai Attila főiskolai tanársegéd
Email: somfai@sze.hu    Homepage: www.somfai.sze.hu


Kivonat:
     Műemléki szakemberek, tervezők, kivitelezők, számára egyaránt tanulságos lehet G. H. Breymann stuttgarti professzor ,,Allegemeine Baukostruktionslehre" azaz ,,Általános épületszerkezettan" című 1897-ben megjelent négy kötetes tankönyve. A enciklopédikus igénnyel megírt mű a német magasépítészet egészét mutatja be az alapozástól a tetőszerkezetekig.
      Ezúttal a 19. század eleji faanyagú födémeket taglaló fejezetrészből válogatunk (nem érintjük a század második felében már tért hódító vegyes anyagú, illetve nem faanyagú födémeket). 16-18. századi kapcsolódó szerkezetpéldákat is bemutatunk a jellegzetesen német favázas falas (fachwerk) építés területéről.
    A fából készült történeti tartószerkezetek felújítása szempontjából igen hasznos a maitól eltérő szerkezetkonstuálási gondolkodásmóddal találkozni. Az olvasó bizonyára örömmel fedez fel számos -– ma már csupán technikatörténeti jelentőségű – megoldást. Például vasbeton födémkoszorú helyett falkötő vasakkal találkozunk, a tetőfödém és a fedélszék kötőgerendasora ("Balkenanlage") akkoriban még nem vált szét.
    A befejező részben keressük a választ arra, hogy értékes régi épületeink felújításakor – melyek nemritkán faanyagú épületszerkezetekben bővelkedő műemléki épületek is egyben – mi lehet a helyes, elődeinkhez méltó építői magatartás.


1. A FAFÖDÉM SZERKEZETI ELEMEI ÉS KONSTRUÁLÁSA

A födém szerkezeti elemei

    A födém az épületek tereinek alsó vagy felső lehatárolására szolgál. Lehet közbenső födém vagy zárófödém, vízszintes vagy lejtő síkú. A mennyezeten megmutatkozhat a gerendakiosztás ritmusa,  kialakítása lehet kazettás  vagy sík is.

    Tetőfödém szerkezeti elemei a ráépülő fedélszék szerves részét képezik (1. ábra). Részei a kötő- vagy födémgerenda (a), a fiókgerenda (b), a fiókváltó (d), a kontykötő- vagy élgerenda (f), válaszfal feletti födémgerenda (g), a szélső kötőgerenda (h), az oromfal menti kötőgerenda (k), a mestergerenda (l) és a sárgerenda (m).

Válaszfal átvezetése a födémen

    A válaszfal rátámaszkodhat a födémgerendára. Kialakításánál különös figyelmet kíván a padlóburkolat ill. a mennyezetvakolat megfelelő becsatlakoztatása. A 2.a ábrán béléses borított gerendafödémen átvezetett válaszfalat láthatunk. Érdemes a válaszfal alá növelt szélességű hosszmerevítő gerendát beépíteni (2.b ábra). Célszerű a válaszfalat a gerenda középvonalára igazítani. Ha ez nem lehetséges, akkor a kedvezőtlen oldalon megerősített ún. kapcsolt hosszmerevítő gerendát alkalmaznak (2.c ábra).

Födémgerendák és középfőfalak kapcsolata
       
    Ha a gerendakiosztás iránya párhuzamos a középfőfallal, fontos a szélső kötőgerendák és a fal között megfelelő kapcsolat létre hozása. A fal mentén két oldalt elhelyezkedő szélső kötőgerendák – a falvastagsággal egyező hosszúságú – betétgerendákkal kapcsolódnak egymáshoz  0,7 - 1,2  méterenként (3. ábra).


tabla1.PNG
Mestergerenda

    Főfalakra támaszkodó mestergerendát  3 - 4,5 méterenként szoktak elhelyezni. A mestergerenda általában a kötőgerendához hasonló keresztmetszetű, toldatlan gerenda. Gyakran a fedélszékkel – pl. függesztőműves fedélszék függesztőoszlopával – szoros szerkezeti kapcsolatban van. A mestergerenda nem csak a födémgerendasor alatt, hanem a gerendasor felett is elhelyezkedhet (5.a és 5.b ábra).

Fiókgerendák
     
    A gerendakiosztásnál arra törekednek, hogy a kötőgerendákat az oldalirányú erőhatásoktól megkíméljék: lehetőleg végigmenően helyezik el őket. Ha erre nincs mód, akkor fiókgerendákat alkalmaznak (mint például az 1. ábrán látható gerendakiosztási terv bal felső sarokrészén). A fiókgerendákat megfelelően alá kell támasztani: a gerendavéget átmenő kötőgerendába kell csapolni és a kapcsolatot ácskapoccsal biztosítani. Az 1. ábra szerinti a-a kötőgerendát a sok csaplyuk nagyon meggyengítené, ezért ide szélesebb méretű gerendát építenek be vagy pedig a kötőgerendát megkettőzik és csapszegekkel kapcsolják egymáshoz.
    Fiókgerendák alkalmazásra van szükség a 16-18. századi fachwerk épületek közbenső födémeinél is, ha a gerendavégek ritmikus rajzolatát esztétikai megfontolásból átfordítják a külső falsarkon (6.a ábra). Egyszerűbb épületeknél célszerűbb az 6.b ábra szerinti elrendezést választani.

Lépcsőátvezetések   

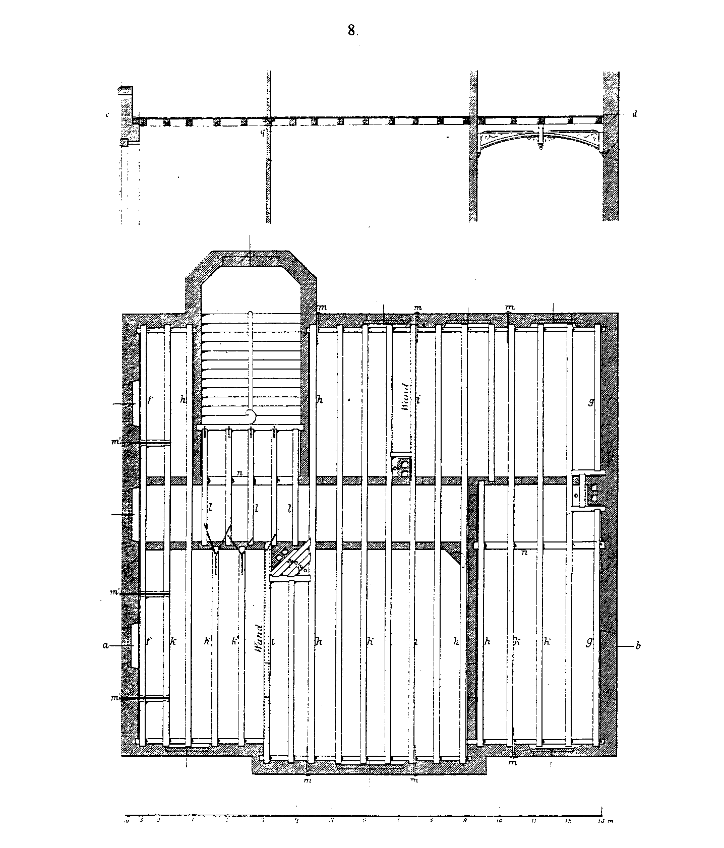
    Lépcsőátvezetéseknél szinte mindig váltó- és fiókgerendákat kell alkalmazni, ezért törekedni kell a minél ésszerűbb gerendakiosztásra: ez a legtöbb esetben a lépcsőház alaprajzi kontúrjának hosszoldalával párhuzamos – tehát kevesebb kiváltást igénylő –gerendakiosztás lesz (8. ábra). 

Kéménykürtők körüli gerendakiváltások  

    Ha a belső főfallal párhuzamosan fektetik a kötőgerendákat, akkor a falban felvezetett kürtők a szélső kötőgerendákat összekapcsoló betétgerendákkal általában nem ütköznek (3. ábra).
    Ha a gerendairány a középfőfalra merőleges, és a falban több kéménykürtő van egymás mellett, akkor a kürtők környezetében gyakran kiváltás szükséges (4.a ábra). Célszerű a kéménykürtőket úgy csoportosítani, hogy a kiváltást átmenő födémgerenda szakítsa meg, amely megosztja a kiváltás hosszát (4.b ábra). 

2. GERENDAKIOSZTÁS

Gerendavéges ereszkialakítású fedélszék és födém

    Minden szarufát – a tetőkontyolás szarufáit is – a neki megfelelő kötőgerendába kell bevezetni. Ha a főállások kötőgerendáin kívül a többi kötőgerenda elmarad (pl. csűrtetőknél), akkor a gerendázatot fiókváltókkal és a szarufavégeket alátámasztó fiókgerendákkal alakítják ki. Kontytetős épületeknél az élszaruk fogadására a falsarok szögfelezőjében végigmenő élgerenda vagy pedig végig nem menő ún. kontykötő fiókgerenda szolgál (1. ábra).
    Középfőfalaknál fontos az egymással szemközti födémmezők kötőgerendavégeit egy vonalba igazítani. Ebben az esetben lesz a főfal keresztmetszetének gyengítése a legkisebb, és a falkötés is így a legegyszerűbb.


 
Szabálytalan alaprajzú, gerendavéges ereszkialakítású fedélszék és födém

    Szabálytalan alaprajzú épületek kötőgerendáinak kiosztásánál különös gondossággal kell eljárni. Belső födémmezők gerendázatát úgy kell kialakítani, hogy az egyes helyiségek lefedése a rövidebb fesztávolság irányába történjen. Ezért a kötőgerendakiosztás hálórajza némileg eltérhet a szarufakiosztást mutató fedélszékalaprajztól (7.a ábra).
    Szabálytalan alaprajzi kontúrnál a  szokásosnál nagyobb számú fiókgerenda adódik. A hosszabb fiókgerendákat nem elegendő a kötőgerendához kapcsolni, hanem közbenső ponton is alá kell támasztani fallal vagy mestergerendával.
    Szabálytalan alaprajzú épületben a kötőgerendákat a homlokzati főfalakra merőlegesen kell elhelyezni. Ha ez nem lehetséges, akkor a szarufák fogadására szolgáló csaplyukakat a kötőgerendavégeken a gerendatengelyhez képest ferdén kell bemarni a főfalra merőleges iránynak megfelelően (7.a ábrán: ,b' jelű gerendavég).
    Ha az épület szemben fekvő homlokzati falai nem párhuzamosak, de a szögeltérés nem jelentős, a kötőgerendákat a főhomlokzati falra merőlegesen fektetik (7.b ábra). Ekkor a kötőgerendákra ülő szaruállások nem lesznek merőlegesek a hátsó homlokzati falra.

Szarufavéges ereszkialakítású fedélszék és födém
 
    Lényegesen egyszerűbb a szarufavéges ereszkialakítású fedélszék és födém  tervezése a gerendavéges ereszkialakításúakhoz képest, mivel a födémgerendák és a szarufák kiosztása egymástól független, és ezért fiókgerendákra sincs szükség.

Közbenső födém

    A 8. ábra egy lakóépület közbenső födémének gerendakiosztását mutatja be. A főfalaknál az ,m' jelű laposacél kengyelek biztosítják a födém és a fal megfelelő együttdolgozását.


3. NÉHÁNY KORABELI FAANYAGÚ FÖDÉM

Pallófödém

    Észak-Amerikában, Angliában, majd Németország nagyobb városaiban is gyakran alkalmazták a pallófödémet.     Magyarországon meglehetősen ritkán, elsősorban padlásfödémként fordult elő. E födémfajta jobban kihasználja a faanyag hajlítószilárdságát, emellett rendkívül fatakarékos. A födémpallók általában 9 - 12 cm szélesek, és 30 - 40 cm magasak. Az élére állított pallók tengelyvonala 35 - 45 cm-re van egymástól. A kihajlás megakadályozására 2 - 2,5 méterenként andráskereszt-jellegű merevítőket építenek be. A merevítők 5 x 10 cm vagy 6 x 12 cm keresztmetszetű zárlécből készülnek. A födémszerkezet együttdolgozását  összefeszítő acélrudakkal biztosítják.
    A pallófödémhez nagyon hasonló a linz-i gimnázium  födéme (9. ábra). E szerkezetnél a pallók távolsága a szokásosnál nagyobb (60 cm), ezért sűrűbben - méterenként - alkalmaztak merevítőket. Az andráskereszteket összelapolták és fűzőcsavarral biztosították.

Csapos gerendafödém

    A gerendákat leháncsolt, félbevágott rönkökből  bárdolással ill. fűrészeléssel alakítják ki. A szorosan egymás mellé helyezett gerendák együttdolgozását méterenként beépített keményfa köldökcsapokkal érik el (10. ábra).
    A födém alsó síkjára nádszövetet erősítenek és ezután vakolják be.  A  nyers födémszerkezet  felső oldali  hézagait agyaggal tömítik,  majd  a födémre 7 -10 cm vastag, rétegekben szárított homokfeltöltés kerül.  A padlóréteg ágyazását a feltöltésbe süllyesztett 5 - 6 cm vastag és 8 - 12 cm széles párnafák szolgálják. A csapos gerendafödém jó hő- és hangszigetelő tulajdonságú. Hátránya, hogy a  tartófal mentén folyamatosan felfekvő födém a falkeresztmetszetet nagyon meggyengíti, ezért annak a szokásosnál erősebbnek kell lennie vagy pedig a födémfelfekvés alatt gyámolító falkiszélesedést kell kialakítani.

Vakgerendás borított gerendafödém

    E födémtípusnál a tartószerkezet és a vakolattartó szerkezet különválik, így a hangszigetelő képesség nagyobb és a vakolat sem repedezik meg a terhelés okozta rezgések következtében (11. ábra). A födém teherhordó részét béléses gerendafödémként készítik. A födémgerenda-közök alatt húzódnak a kisebb keresztmetszetű – gyakran pallószerű –vakgerendák, melyek csupán a vakolattartó deszkázatot hordják. A födémszerkezet és a vakolattartó szerkezet közötti távolságot úgy kell megválasztani, hogy még nagyobb födémlehajlás esetén se érhessenek össze.


tabla4.PNG  
A tábla megtekintése részletesebb változatban


4. A FÖDÉMFELFEKVÉS KIALAKÍTÁSA

    A födémfelfekvés gondos kialakítása a födém tartóssága szempontjából alapvető fontosságú.
    Favázas homlokzati falaknál (16-18. századi, jellegzetesen német fachwerk építésmód) a födémgerendák fa koszorúgerendára támaszkodnak. A födémgerendákat csapolással vagy rovással kapcsolják a koszorúgerendához (12. ábra). A régi favázas épületek homlokzatképzésekor a célszerűség mellett a szépség, karakteresség szempontjait is szem előtt tartották. A födémgerenda-végek kisebb-nagyobb mértékben előreugrottak az alattuk lévő falsíkhoz viszonyítva.  Ezáltal nem csupán a következő szint alapterülete növekedett, hanem a kedvező erőjáték miatt az említett födémgerendák teherbíró képessége is (13.a ábra). A gerendavégeket általában finoman kimunkálták (13.b ábra). Tetőfödémnél a kiugró kötőgerendavégek gyakran díszes párkányzatot alkottak (14. ábra).

tabla5.PNG  
A tábla megtekintése részletesebb változatban


    Kő- vagy téglafalaknál kedvezőtlen, ha a födémgerendák felfekvését falfészkekben alakítják ki (15.a ábra). Ez a megoldás jelentősen gyengíti a falkeresztmetszetet, és a gerendavégek is gyors romlásnak vannak kitéve.
    A födémgerendákat ezért leggyakrabban sárgerendára fektetik fel. A födémgerendák egyszerű rovással vagy a biztosabb keresztrovással kapcsolódnak a sárgerendához. A sárgerenda feladata, hogy a koncentrált terheket elossza és födémlehajláskor a feltámaszkodó gerendavég elfordulását lehetővé tegye. A sárgerendát – tartóssága érdekében – főként lucfenyőből készítik. Mivel teljes hosszában felfekszik, elegendő a 9 / 12 cm-es vagy 12 / 12 cm-es keresztmetszeti méret.
    Annak érdekében hogy ne csökkenjen a főfal hasznos keresztmetszete, közbenső födémeknél  a  sárgerendát falkiugrásra   fektetik  fel  (15.b  ábra).    Nagy  nyílásokkal  áttört főfalaknál pedig nagyobb keresztmetszetű gerendát alkalmas helyeken kialakított gyámkövekre ültetnek fel (15.c ábra). Iyenkor a faanyag szellőzése is jobban megoldott. Egy középkori példa: a nürnbergi vár lovagtermében a gyámköveket még gyámoszlopokkal is kombinálták (15.d ábra).

tabla6.PNG  
A tábla megtekintése részletesebb változatban
 

5. FAFÖDÉMEK MENNYEZETÉNEK KIALAKÍTÁSA

    A fafödémek alsó felülete sík, bordázatos vagy kazettás lehet. A síkmennyezeteket deszkaborítással vagy az alsó felület nádszövet hordozórétegű bevakolásával alakítják ki.
    Egyszerűbb bordázatos mennyezetnél a gerenda látszó felületeit meggyalulják, vagy bevésett tagozatokkal díszítik. A gerendaközökbe harántirányú deszkázat ékelődik be. A gyalult deszkák horonnyal kapcsolódnak egymáshoz (16.a ábra), vagy pálcásan illesztik őket (16.b ábra). A homokfeltöltés kipergését a deszkázatra kerülő agyagtapasztás gátolja meg. Igényesebb mennyezetkialakításnál az andráskeresztekkel merevített gerendaközöket finoman megmunkált fatáblákkal díszítik (17. ábra).
    Deszkából kialakított haránt-elemekkel elegáns kazettás mennyezetstruktúra is létrehozható (18. ábra). Sokszor nem csak a gerendaközöket, hanem a gerendákat is borítással látják el.


 
A tábla megtekintése részletesebb változatban
 


6. TÖRTÉNETI ÉPÜLETEK FELÚJÍTÁSA, MŰEMLÉKVÉDELEM

      Történeti  épületszerkezetekkel régi épületek, nem ritkán  műemléki épületek  felújítása során kerülünk kapcsolatba. Ez esetben még körültekintőbben kell eljárnunk:  alapos dokumentálási munkafázis után láthatunk hozzá a helyreállítás megtervezéséhez, összhangban az 1964-ben elfogadott  Velencei Karta  szellemével.

Dokumentálási munkafázis:

Épületfelmérés és fotódokumentáció

    Kívánatos, hogy az épületfelmérést maga a felújítást tervező szakember végezze, aki így számos, a dokumentáción túlmutató többlet információhoz jut. – A felmérési anyagot szervesen kiegészítő fotókat az épületben szisztematikusan haladva készítik,  közben a felvételek  pontos  helyét és idejét rögzítik.

Épülettörténeti kutatás
      Beszerzik az eredeti terveket, iratokat. Az ezt követő elemzés, összehasonlító vizsgálat hivatott megállapítani: változott-e a tervhez képest az épület már a kivitelezéskor és főként a későbbi korokban? Az átalakítások hogyan befolyásolták az épület egészét?  A kutatást legjobb, ha építészmérnök végzi,  szükség esetén művészettörténész szakember bevonásával. Helyszíni kutatáshoz (falkutatás, kisebb bontások) az Országos Műemlékvédelmi Hivataltól építési engedélyt kell kérni, és a munkálatokat még a kiviteli terv készítése előtt be kell fejezni.

Műszaki vizsgálat
    Az épületszerkezetek, köztük a faszerkezetek (födém, fedélszék, nyílászárók, burkolatok stb.) állagát vizsgálják, figyelemmel az esetleges károsodásokra.
    Történeti épület esetén a tartószerkezeti szakvéleményt a szokásosnál jóval kiterjedtebbre kell készíteni: az állékonysági vizsgálatnál többek között figyelembe kell venni az épületet ért hatásokat és az eltelt időt is

Műemléképület helyreállításának megtervezése:

    A tervezés kezdetén el kell döntenünk, hogy csupán konzerválás, vagy pedig az épület átfogó restaurálása-e a célunk.
    A történti tartószerkezetek tekintetében cél az épület fő tartószerkezeteinek megtartása a felújítás során. Szükségessé válhat megerősítés betervezése – ez azonban ne legyen szerkezetidegen megoldás.
    Faszerkezeteknél kiemelten fontos a megfelelő faanyagvédelem megtervezése: célszerű ehhez faanyagvédelmi szakembert bevonni. Törekedni kell arra, hogy a faanyagvédelem a legkevesebb roncsolással járjon és minimális szerkezetcserére legyen szükség. Rovarkárosítók ellen szerkezetkímélő védelmi eljárások a hőkezelés és a fóliaburok alatti elgázosítás. Már kaphatók korszerű, környezetkímélő, gomba és rovarkárosítók ellen hatásos olyan védőszerek, melyekkel egyszerű áztatás útján is mélyvédelmet érhetünk el. – Szilárdsági igénybevételnek kitett szerkezetek cseréjekor faanyagvédelmi szakértő és statikus szakember együttműködése szükséges.
    A műemlékfelújítás mikéntjének kérdése: kiegészítés, csere milyen anyagból történjen ?
Pár évtizede kozépkori várak tartószerkezeteit előszeretettel egészítettek ki ,,modern" anyagokkal, például  vasbetonnal. Ma inkább az eredetivel azonos, vagy ahhoz nagyon hasonló anyaggal való pótlást érezzük helyesnek. A megtévesztés elkerülésére nem hivalkodó, de jól látható módon (pl. színes jelzőcsíkkal) különítjük el a pótlást az eredeti anyagtól. Hasonló elv körvonalazódik a fa tartószerkezeteknél is: vadonatúj faanyagból való pótlás helyett hasonló korú, bontott épületekből nyert szerkezeti elemeket szerencsésebb beépíteni.

*       *       *
    Nem szabad felednünk: ,,műemléki épületek, értékes régi épületek felújítása nem csupán műszaki ténykedés, hanem épületeink atmoszférájának, kultúránknak megőrzése" (Winkler Gábor professzor hitvallása). 



IRODALOM:
 
[1]  Prof. G. H. Breymann: Allegemeine Baukonstruktionslehre
      Karlsruhe, 1897   
[2]  Prof. Dr. Gábor László: Épületszerkezettan I-IV.
      Budapest, 1962




Summary*

SAMPLES FROM THE LAST CENTURY'S
SCIENCE OF WOOD CONSTRUCTIONS


by
Dipl. Ing. Attila SOMFAI architect, assistant professor (Győr, Hungary)

    It might be equally instructive both for experts of monuments, designers and builders to study wood constructions from the past century presented here mainly on the basis of German technical literature of the time.
    As a guide, wooden floors (ceilings) of the beginning of the 19th century are selected, and ceilings from composite raw materials that have already reached an ever growing incursion in the second half of the 19th century are not discussed here. From the point of view of renewals to historican supporter constructions made of wood, it could even be very useful to meet a way of thinking of building erection differing so deeply from that of today´s. With pleasure you should have observed lots of solutions that have only importance to the technical history today. We can find, for example, wall-ties instead of collars from reinforced concrete, or bind-beams at the roof floor and roofage have not even departed at that time, and so on. References to the typical German building method with half-timbered walls (in German original: Fachwerk) are also of interest.
    At the end, an answer is searched for the question what the correct and precedent-worthy builders´ behaviour might be at reconstruction processes of valuable old buildings.

* All summaries have been translated and published only in Romanian in proceedings:


Rezumat

IMPRESII DESPRE ARHITECTURA IN LEMN
A SECOLULUI TRECUT

Arh. Attila SOMFAI asistent universitar (Győr, Ungaria)

    Studiul structurilor de lemn din secolul trecut – prezentarea facandu-se pe baza literaturii de specialitate germane – este de folos atat pentru specialistii domeniului de reabilitare a monumentelor istorice cat si pentru proiecanti si executanti.
     Lucrarea de fata trateaza in detaliu planseele din lemn, fara a se opri asupra planseelor mixte, predominante in a doua jumatate a secolului XIX. Cunoasterea conceptelor structurale folosite in trecut – diferite de cele prezente – este importanta din punctul de vedere al reabilitarii structurilor istorice din lemn. (Re)decoperirea unor rezolvari ale trecutului – importante pentru istoria tehnicii – pot fi utilizate in cadrul procesului de restaurare. Pentru exemplificarea diferentelor conceptuale putem aminti tirantii metalici utilizati in loc de centuri de beton armat sau grinzile planseelor peste ultimul etaj care erau in acelasi timp si corzile fermelor de acoperis etc. Deasemenea sunt interesante structurile tip fachwerk – utilizate mai ales pe teritoriul Germaniei.
     Obiectivul prezentarii este cautarea solutiilor optime in reabilitarea structurilor de rezistenta ale cladirilor de patrimoniu arhitectural, nu de rareori monumente istorice.



 

Laptetőre
Kapcsolat